お電話でのお問い合わせ
0568-56-3088
お問い合わせフォームはこちら
造園四季について
事業内容
造園・外構・
エクステリア事業
住宅支援事業
教育事業
会社概要
お知らせ・施工事例
採用情報
Q&A・お仕事のご依頼
事業内容
造園・外構・
エクステリア事業
住宅支援事業
教育事業
造園四季について
造園四季が選ばれる理由
造園四季のビジョン
会社概要
経営理念
代表挨拶
会社概要
造園四季の沿革
アクセス
お知らせ・施工事例
採用情報
求める人物像
先輩スタッフインタビュー
1日の流れ
造園四季に入社後ワンツースリー
数字で見る造園四季
募集要項
Q&A・お仕事のご依頼
よくある質問
お仕事のご依頼
お電話でのお問い合わせ
0568-56-3088
お問い合わせ
お問い合わせ
フォームはこちら
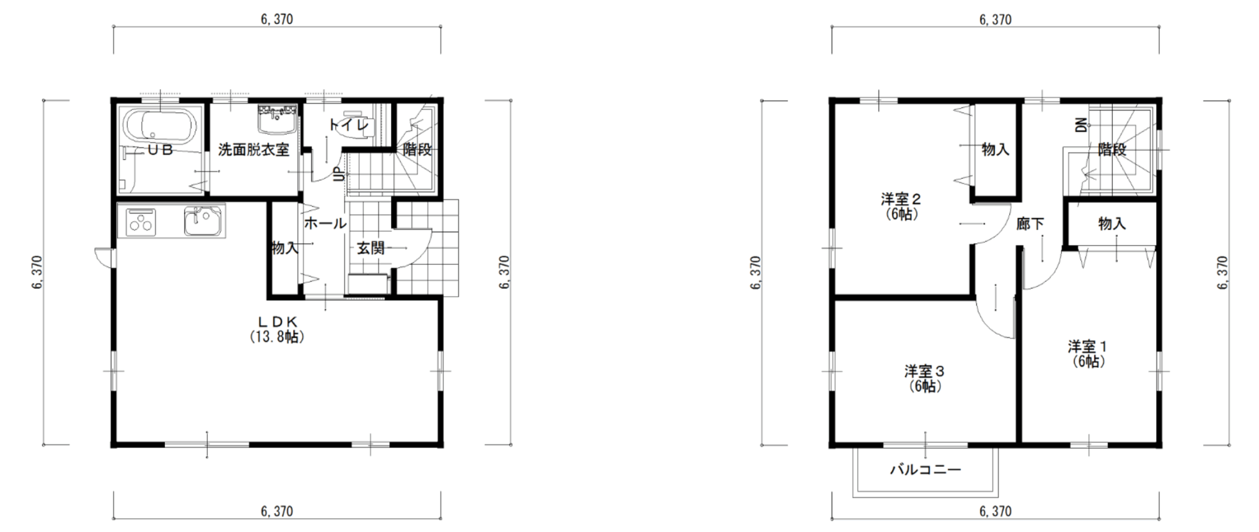
商品ラインナップ
商品概要
UNIT1
3LDK/UNIT1
¥10,263,000-
(税込み価格)
ロフト追加オプション対応
1階施工面積 / 38.92㎡(11.77坪)
2階施工面積 / 40.57㎡(12.27坪)
延床面積 / 79.49㎡(24.04坪)
※金額は情勢によって変更する場合がございます。
株式会社洋館家
間取り
カタログはこちら
一覧に戻る